Dépôt et Villa du Moulin de Carrière

Extension d’un entrepôt dans le Gard

Client : Privé, Lieu : Aubais (30) Budget : 400 000 euros HT, Surface : 300 m², Phase : DPC

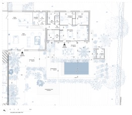
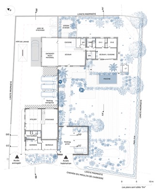
La parcelle est divisée en trois zones : un espace de dépôt du matériel de chantier liée à l’activité professionnelle du maître d’ouvrage, la partie habitation principale au centre du corps de bâtiment et une extension réservée à un usage locatif ou l’accueil de la famille.

​

L’objectif est double : optimiser l’espace de rangement de l’entrepôt et redonner un aspect domestique à l’habitation. Par ailleurs, le projet prévoit une uniformisation des façades, un aménagement des extérieurs, une réhabilitation de l’extension du logement et la création de stationnements dédiés à chaque zone.

​

La volonté est donc de cloisonner les deux espaces distincts. Alors même que le nouveau dépôt pourrait être perçu comme un inconvénient, le parti-pris est de placer celui-ci au centre de la parcelle et d’en faire un atout au projet. Agissant comme un écran de protection contre le Mistral, l’entrepôt recentre également le jardin sur lui- même et lui confère plus d’intimité. Une frange végétale plantée d’essences tropicales filtre les vues sur la partie entrepôt et permet une mise à distance esthétique et domestique pour la partie habitation. Aussi, un système de coursives ombragées fait le lien entre les différents corps de bâtiments et permet une uniformisation des façades. Se retournant le long de l’habitation principale, la coursive se prolonge à l’avant de l’extension et définit ainsi des espaces extérieurs couverts.

​

Reprenant des éléments contemporains tels que des casquettes en béton mais aussi des systèmes de protection solaire comme la « varanda » tropicale, le projet est nourri de diverses influences et se veut à l’image de ce couple franco-brésilien.

Insertions 3D

Plan de niveau

Pistes de recherche

> Projets

Atelier d’architecture

CROA PACA : S22773 

OK

Ce site web utilise les cookies. Veuillez consulter notre politique de confidentialité pour plus de détails.