Chalet Montmagny

Conception d’un chalet en Savoie

Client : Privé, Lieu : Saint-Marcel (73), Phase : ESQ > PRO

Orienté en direction de la vallée, le chalet prend de la hauteur par rapport aux constructions et voies avoisinantes. 

Le cheminement paysager d’accès est pensé comme une promenade et participe au sentiment d’évasion et d’élévation que procure ce lieu unique. Au pied du rez-de-chaussée en pierres de la région, une plateforme agrémentée d’un banc offre la possibilité de profiter d’une pause face à la vue.

​

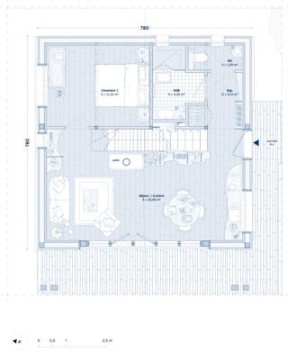
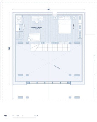
L’espace intérieur s’organise quant à lui en trois niveaux. 

Le Rez-de-chaussée accueille les habitants via un hall d’entrée permettant de déposer les affaires de ski, de randonnée ou encore les vélos dans les deux locaux de rangement prévus à cet effet.

Un escalier mène ensuite à l’espace de vie en R+1, éclairé par une vaste ouverture sur le paysage. La pièce principale de développe en double hauteur. Un poêle à bois occupe une place centrale aussi bien pour ses capacités de chauffage que pour son usage à destination culinaire.

Les espaces à l’arrière du chalet en R+1 et en mezzanine sont destinés aux chambres et aux pièces d’eau.

Le balcon filant, véritable belvédère sur la vallée, relie le R+1 au terrain naturel.

​

Ce projet est le fruit d’une réflexion contextuelle. Aménagé dans l’esprit des chalets traditionnels des montagnes, le bois est présent dans tous les éléments de structure et d’architecture intérieure pour une immersion en finesse dans cette belle région savoyarde.

> Projets

Atelier d’architecture

CROA PACA : S22773 

OK

Ce site web utilise les cookies. Veuillez consulter notre politique de confidentialité pour plus de détails.