Appartement Portimao

Aménagement d’un appartement au Portugal

Client : Privé, Lieu : Portimão (Portugal), Surface : 85 m², Phase : ESQ

Cet appartement de 85 m2 situé à Portimão au sud du Portugal est entièrement repensé dans ses flux de circulation et son architecture intérieure. En attique d’un immeuble des années 60, ce bien offre une vue remarquable sur l’embouchure du fleuve Arade et ses coteaux. 

​

À l’origine séparée du séjour, la cuisine rejoint la pièce à vivre principale dans un esprit d’ouverture et de partage selon la volonté du maître d’ouvrage. Des contraintes techniques, telles que des gaines et éléments structurels majeurs de l’immeuble, sont intégrées à l’aménagement intérieur au moyen de niches de décoration. L’ambiance se veut épurée, les matériaux employés sont naturels et bruts, les éléments de décoration sont minimalistes. 

​

La terrasse, tel un fil conducteur relie toutes les pièces entre elles et constitue un espace intermédiaire et privilégié avec le paysage environnant de la baie de Portimão.

​

Ce modeste appartement reçoit ainsi un traitement simple mais de qualité pour un pied-à-terre en Algarve dépaysant et apaisant.

Insertions 3D

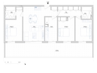
Plan de niveau existant

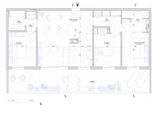
Plan de niveau projet

> Projets

Atelier d’architecture

CROA PACA : S22773 

OK

Ce site web utilise les cookies. Veuillez consulter notre politique de confidentialité pour plus de détails.