Appartement Font Neuve

Création d’un logement en rez-de-chaussée

Client : Privé, Lieu : Béziers (34), Phase : Mission complète

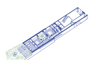
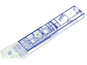
En rez-de-chaussée d’un immeuble typique du centre historique de Béziers, le logement projeté doit relever un certain nombre de défis quant à l’ensoleillement, l’apport de lumière naturelle, l’orientation et l’enchainement des espaces pour proposer un lieu de vie optimal et agréable. En voici les principaux enjeux :

​

1. LA PROGRAMMATION :

​

Le projet concerne la création d’un logement de Type 3 comprenant notamment le programme suivant: un séjour, une cuisine, deux chambres, une salle de bain et un WC.

La parcelle étant étroite et développée sur la longueur, les espaces s’enchainent naturellement dès l’entrée de la zone « nuit » à l’espace « jour ».

2. LA DISTRIBUTION DES ESPACES :

​

L’enchainement des pièces, de l’entrée au jardin, impose simplement un principe de distribution linéaire des espaces.

Avec pour objectif le gain de place et la fonctionnalité du logement, la circulation linéaire dessert l’ensemble des espaces menant finalement directement à la pièce de jour et au jardin.

3. LA RECHERCHE D'OUVERTURES :

​

Dans la configuration actuelle, la seule source de lumière naturelle et d’aération se trouve du côté du jardin. Les ouvertures en toitures sont fortement contraintes par l’étage supérieur de l’immeuble.

En l’état, l’aménagement d’un logement T3 est compromis. La recherche d’ouvertures et l’apport de lumière dans le logement est l’enjeu principal.

4. LA COUR INTÉRIEURE :

​

L’étroitesse de la parcelle, la mitoyenneté de l’immeuble empêchant la création d’ouvertures latérales mais aussi l’orientation Nord-Ouest du logement et sa situation en rez-de-chaussée conduisent à la création d’une cour intérieure. Autour de celles-ci peuvent s’articuler les chambres.

Le logement est ventilé et dispose ainsi de plusieurs sources de lumière naturelle.

5. LE COULOIR HABITÉ :

​

Par sa présence, d’un bout à l’autre du logement, le couloir peut être habité et ainsi participer à la convivialité du logement.

De l’entrée au séjour, en passant par les chambres, il est la seule circulation. L’espace intermédiaire éclairé par la cour intérieure réduit mentalement la longueur du couloir qui de par sa dimension offre plusieurs possibilités d’usages.

6. DE L'INTÉRIEUR À L'EXTÉRIEUR :

​

Dès le seuil d’entrée de l’appartement, l’usager perçoit le jardin droit devant lui. Il est donc attiré naturellement vers le séjour, pièce de vie du logement et le jardin dans le prolongement.

Les niveaux du sol du projet sont au plus proche des altimétries existantes. Ainsi, le logement est séquencé en trois espaces et niveaux différents en rapport avec l’extérieur ; l’entrée, la cour intérieure et le jardin. À chaque emmarchements, l’usager est un peu plus près du niveau du jardin.

> Projets

Atelier d’architecture

CROA PACA : S22773 

OK

Ce site web utilise les cookies. Veuillez consulter notre politique de confidentialité pour plus de détails.